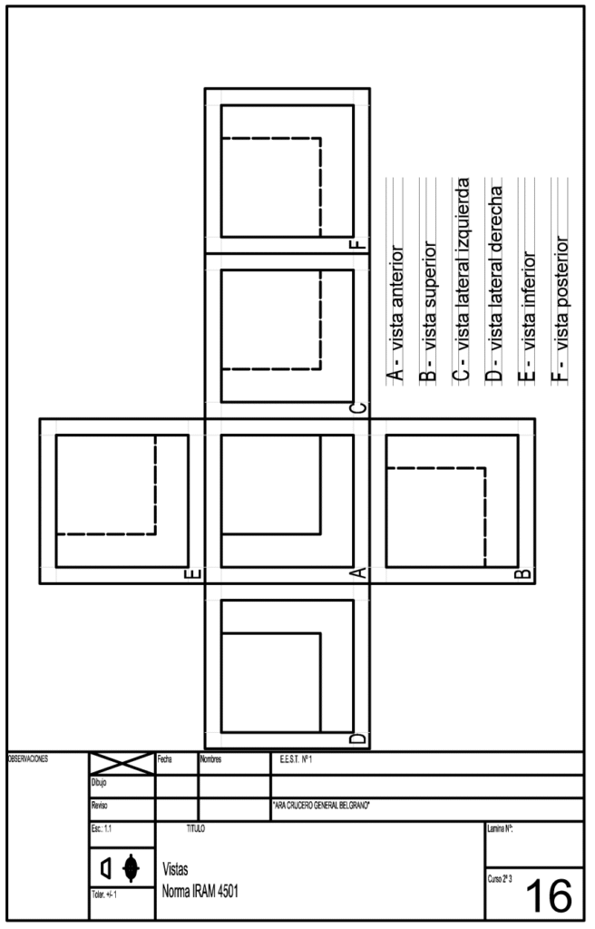
LTE 16 – Lámina 16 – Perspectiva Norma IRAM 4501 Autor de la entrada:admin Publicación de la entrada:1 de diciembre de 2025 Categoría de la entrada:Lenguajes Tecnológicos 2025 Comentarios de la entrada:Sin comentarios También podría gustarte LTE(int) – Actividad integradora del año cursado 1 de diciembre de 2025 LTE 10 – Lámina 10 – Perspectiva Norma IRAM 4540 1 de diciembre de 2025 LTE 13 – Lámina 13 – Perspectiva Norma IRAM 4501 1 de diciembre de 2025 Deja una respuesta Cancelar la respuestaComentarioIntroduce tu nombre o nombre de usuario para comentar Introduce tu dirección de correo electrónico para comentar Introduce la URL de tu web (opcional) Guarda mi nombre, correo electrónico y web en este navegador para la próxima vez que comente.